FONTAN Centre
Appartement 3 pièces + local en rez-de-chaussée
Situé en plein cœur du village de Fontan, cet appartement 3 pièces, au 1er étage d’une petite copropriété, se compose de : 2 chambres, une cuisine, un salon/séjour lumineux, une salle d’eau, un débarras, un jardinet.
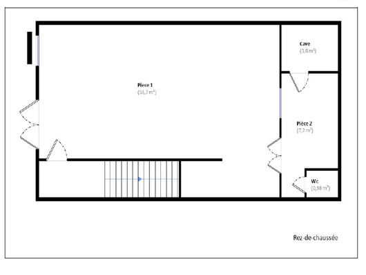
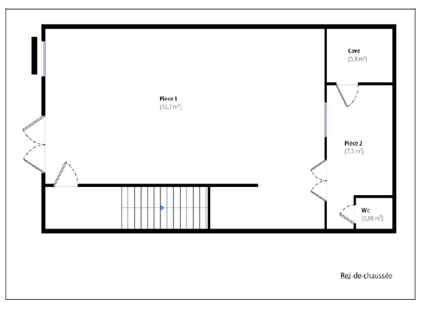
En rez-de-chaussée, un local indépendant d’environ 60 m² complète le bien. Il comprend : une grande pièce, une seconde pièce, un WC, une cave
🔑 Atouts :
-
Bien actuellement loué jusqu’en mars 2027, offrant un excellent rendement locatif
-
Idéal investisseur
-
Quelques travaux de rafraîchissement à prévoir
📍 Emplacement central, proche de toutes les commodités.
👉 À saisir rapidement !
Estimation des dépenses théoriques des usages énergétiques : | entre 1 470€ et 2 030€ |
Année de référence | 2023 |
Surface carrez appartement | 57.81 m² |
Surface carrez Local | 59.88 m² |
Surface au sol totale | 122.93m² |
Nombre de lots | 4 |
Procédure en cours | non |
Montant des charges mensuelles | 0 |
Taxe fonxière annuelle | 227 |
Les honoraires d'agence seront intégralement à la charge du vendeur | |
Les informations sur les risques auxquels ce bien est exposé sont disponibles sur le site Géorisques : | www. georisques. gouv. fr |
Chauffage appartement | Electrique |
Eau chaude sanitaire | Electrique |
